KONSTRUKTION & INGENIEURBAU
KONSTRUKTION & INGENIEURBAU

Projekte und Referenzen

Hier finden Sie eine Auswahl aus unserem breiten Spektrum an bisher realisierten Projekten.

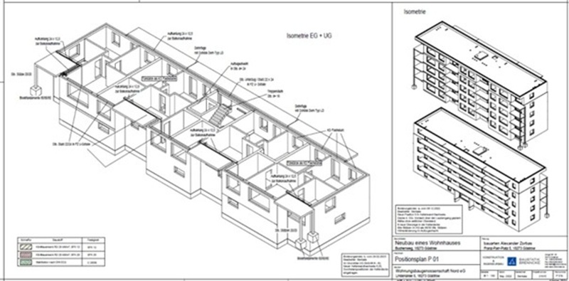
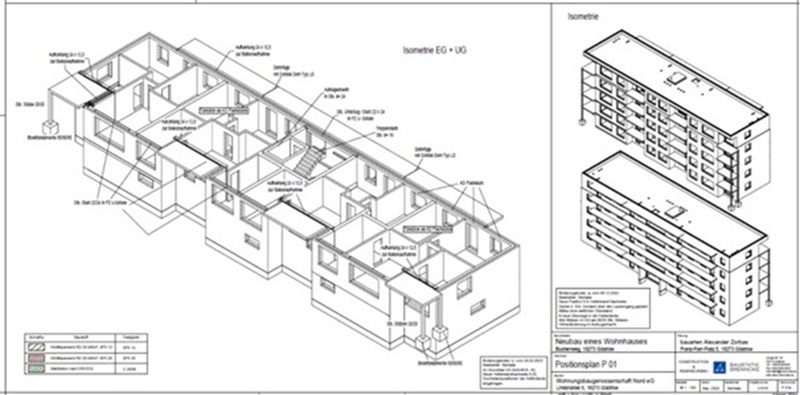
Neubau 20 WE Nordstadt Güstrow

Neubau 20 WE Nordstadt Güstrow, Buchenweg

Bauherr: WohnungsBauGenossenschaft Nord eG, 2022-2024

Architekt: Alexander Zorbas, Güstrow

Neubau und Sanierung Thomas-Müntzer-Schule Güstrow

Umbau der Thomas-Müntzer-Schule in Güstrow mit Errichtung eines Neubaus

Bauherr: Barlachstadt Güstrow, 2020-2023

Architekt: Michael Sauerbier, Güstrow

Neubau Grund- und Regionalschule Sundhagen

Neubau einer Grund- und Regionlaschule mit 2-Feldsporthalle (Spannweite 27 m)

Bauherr: Gemeinde Sundhagen, Amt Miltzow Land, 2018-2021

Architekt: Architekturbüro Strübing & Zschuckelt, Güstrow

Flugplatz Rostock-Laage - Neubau Besonderer Fahrdienst

Flugplatz - Neubau Gebäude Besonderer Fahrdienst in Stahlbetonbauweise

Bauherr: Betrieb für Bau- und Liegenschaften Mecklenburg-Vorpommern, 2016-2019

Architekt: Architekturbüro mhb, Rostock

Neubau Grundschule mit Hort und Mensa

Neubau eines Schulgebäudes in Stahlbeton- Mauerwerks- und Holzbauweise,

Bauherr: Hansestadt Rostock, 2017-2018

Architekt: Architekturbüro b3, Rostock

 

Neubau Schulgebäude mit Kita

Neubau eines Schulgebäudes und Kindertagesstätte

Bauherr: Freie Schule Güstrow e.V., 2016/2017

Architekt: Alexander Zorbas, Güstrow

 

Neubau Wohn- und Geschäftshaus

Neubau eines Wohn- und Geschäftshauses in Massivbauweise auf Pfahlgründung

Bauherr:WGG - Güstrow, 2015/2016

Architekturbüro Kruse & Fliege, Güstrow

Neubau - Ulmenhof Güstrow

Neubau eines Wohnhauses in Massivbauweise auf Pfahlgründung

Bauherr:AWG - Güstrow, 2014/2015

Architekturbüro Kruse & Fliege, Güstrow

 

Holztafelbauten

Seit 2009 sind wir Rahmenpartner der ScanHaus Marlow GmbH für die Erstellung von Statiken für Gebäude in Holzbauweise.

Neubau 39 WE Betreutes Wohnen

Neubau eines Wohnhauses in Stahlbetonbauweise

Bauherr:Arbeiterwohlfahrt-Kreisverband Güstrow, 2013/2014

 

Neubau Gemeindehaus

Neubau Gemeindehaus der Ev.-Luther. Domgemeinde Güstrow in Holztafelbauweise, Bauherr Domgemeinde Güstrow, 2012/2013

Achritekturbüro Johannsen und Partner, Hamburg

Neubau Wohn- und Geschäftshaus

3-geschossiges Wohn- und Geschäftshaus auf Bohrpfahlgründung, Bauzeit 2012/2013

Architekturbüro Kruse & Fliege, Güstrow

Landesforschungsanstalt Gülzow

Sanierung Institut und Neubau Labor - Forschungsanstalt Gülzow,

Bauherr: Betrieb für Bau- und Liegenschaften M-V, Bauzeit 2010-2012

Architekt: Architekturbüro MHB Rostock

Sanierung Einzeldenkmale

Grundinstandsetzung von 3 Einzeldenkmalen, Bauzeit 2010-2012 

Bauherr: Dr. Lieberum

Architekturbüro Kruse & Fliege, Güstrow

 

Aquakultur Born a.d. Darß

Neubau Forschungsgebäude für die Fischereizucht in Stahlbauweise. Baujahr 2009-2011

 

Druckversion | Sitemap
© Karlheinz Brenncke Baustatik Brenncke